Propriété

Description

Nouvelle opportunité à Saint-Pie : maison 2 chambres avec immense terrain et grange équipée! Brique 1924 pleine de cachet, cuisine et salle de bain rénovées, poêle à bois et thermopompe pour un confort quatre saisons. Deux chambres à l'étage avec possibilité d'en aménager deux autres. Terrain de 73,606 pi² incluant une parcelle boisée en bord de rivière, parfait pour feu, détente ou projet récréatif. Grange isolée avec plancher surélevé. Installation électrique surdimensionnée idéale pour atelier, culture intérieure autorisée ou projet nécessitant puissance. Emplacement paisible, aucun voisin arrière, à deux pas du village.

Vous cherchez une maison 2 chambres à Saint-Pie avec grand
terrain? Ce domaine de plus de 73,000 pi² combine espace,
nature, et potentiel. La maison en brique de 1924 a
conservé tout son cachet, avec ses planchers de bois, sa
galerie couverte et son ambiance chaleureuse grâce au poêle
à bois et à la thermopompe. La cuisine et la salle de bain
ont été rénovées avec goût, mêlant confort moderne et
charme d'époque.

À l'étage, vous trouverez deux chambres actuelles, avec la
possibilité d'aménager deux autres pièces selon vos besoins
au rez-de-chaussée.

Le terrain de plus de 73,000 pi² vous offre un espace de
jeu rare. La majorité du terrain est située autour de la
maison, mais une portion boisée en bordure de la rivière,
de l'autre côté du chemin, fait également partie du lot. Un
lieu idéal pour installer un quai, ou simplement profiter
de la nature.

La propriété comprend également une grange massive, isolée,
avec plancher surélevé. La grange est équipée d'une
installation électrique surdimensionnée, idéale pour un
atelier, une culture intérieure autorisée ou tout projet
nécessitant une capacité énergétique supérieure. L'espace
est brut mais fonctionnel, prêt à être adapté selon vos
idées.

Le 477 Rang du Bas-de-la-Rivière à Saint-Pie est idéale
pour un artisan, un passionné d'autonomie ou toute personne
à la recherche d'un grand terrain à exploiter. Située sur
un rang tranquille, entourée de champs ouverts et à
proximité de Saint-Pie, cette propriété rare est prête à
accueillir vos idées.

Inclus : Luminaires, stores, fixtures.

Location


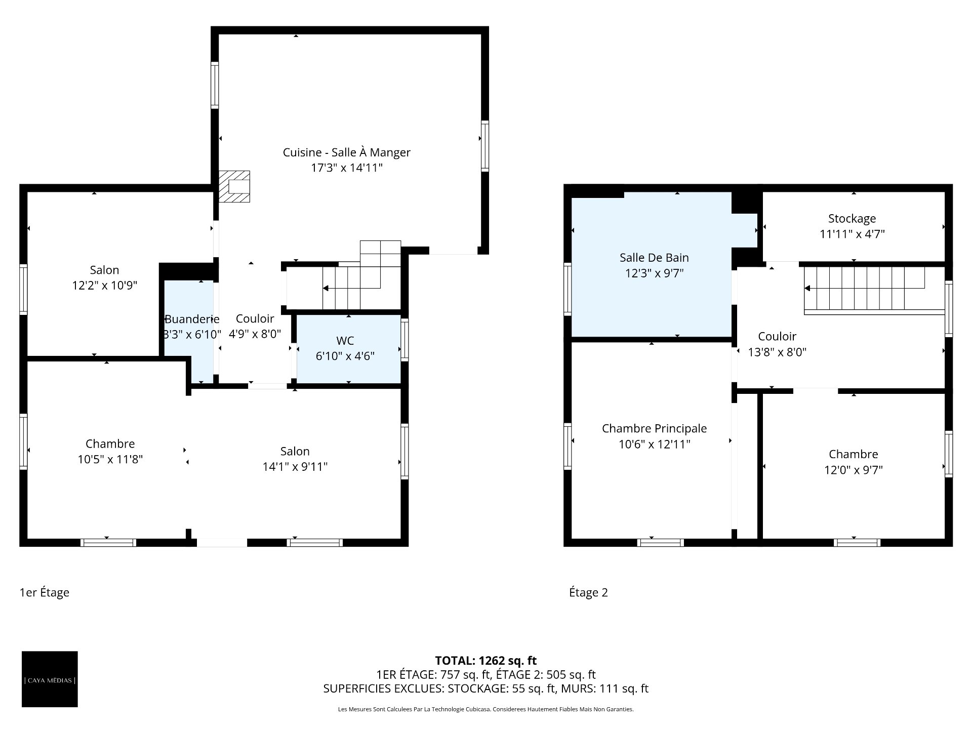
Détails des pièces

Chambre Dimensions Niveau Revêtement
Cuisine 17.3 x 14.11 P Rez-de-chaussée Bois
Salon 12.2 x 10.9 P Rez-de-chaussée Bois
Salle d'eau 6.1 x 4.6 P Rez-de-chaussée Céramique
Chambre à coucher 10.5 x 11.8 P Rez-de-chaussée Bois
Salon 14.1 x 9.11 P Rez-de-chaussée Bois
Chambre à coucher principale 10.6 x 12.11 P 2ième étage Bois
Chambre à coucher 12 x 9.7 P 2ième étage Bois
Salle de bains 12.3 x 9.7 P 2ième étage Bois

Caractéristiques

Particularités Accès à l'eau, Bordé par l'eau, Navigable
Zonage Agricole
Stationnement Au garage, Extérieur
Fondation Béton coulé
Énergie pour le chauffage Bois, Électricité
Revêtements Brique
Système d'égouts Champ d'épuration, Fosse septique
Garage Détaché
Salle de bains/salle d'eau Douche indépendante
Approvisionnement en eau Municipalité
Vue Panoramique
Mode de chauffage Plinthes électriques
Foyers-poêles Poêle à bois
Fenêtres PVC
Toiture Tôle
Sous-sol Vide sanitaire

Contactez-moi

J'accepte d'être contacté par Marc-André Dumaine par appel, email et SMS. Pour vous désinscrire, vous pouvez répondre 'stop' à tout moment ou cliquer sur le lien de désinscription dans les emails. Des frais de message et de données peuvent s’appliquer. Politique de confidentialite et Condition de services.